设计师|一家三口人住16㎡的家,连床都没有,他们却说:舒服得很!

文章图片

文章图片

文章图片

文章图片

文章图片

文章图片
【设计师|一家三口人住16㎡的家,连床都没有,他们却说:舒服得很!】
文章图片

文章图片

对于许多年轻人来说 , 大城市是他们梦想开始的地方 。 无数人怀揣着梦想 , 在大城市里打拼 , 可房价却成为了许多人的“绊脚石” , 有一部分人为了梦想 , 选择租房度日 , 也有一部分人选择买小户型的家 , 似乎有了家 , 才算在这座城市扎根 。
今天分享一位90后小伙 , 与大多数在大城市打拼的年轻人一样 , @严先生大学毕业后 , 就在北京白手起家 , 靠自己打拼 , 买了一套16㎡的小宅 , 屋子虽小 , 甚至连张床都没有 , 他们一家三口人却说住得舒服 。
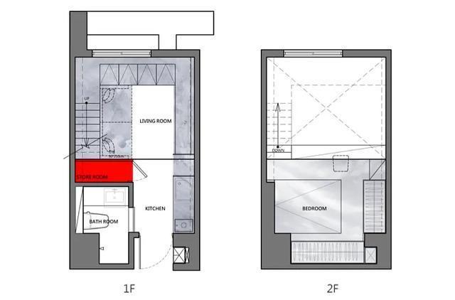
▼房屋概要以及户型布局
这是一套位于北京的小公寓 , 套内面积仅有16㎡ , 屋子虽小 , 却比租房好太多了 , 打拼了好几年 , @严先生也算是带着妻儿过上了有房的“理想生活” 。
仅有16㎡的小公寓 , 如何容纳一家三口人 , 又如何让每一个家庭成员都住得舒服 , 这是本案设计的难题 。
▼改造前的小公寓
与其说这是一套房子 , 不如说 , 就是一个房间+一个卫生间 , 改造前的小公寓 , 户型布局极为简单 , 如同一个16㎡的小盒子一般 , 小而拥挤 。 好在层高将近4米 , 这位设计师的改造设计 , 提供了便利 。
▼户型改造方案
尽管房屋小到仅有16㎡ , 但原始户型结构还算合理 , 并且还拥有一个小阳台 , 足够满足洗衣晾晒 。 而设计师的改造思路在于:4米的层高 。 利用现有的层高 , 为空间置入了一个2层空间 。
改造后的户型 , 由1层变为2层 , 且厨房被移动到过道空间 , 高挑空的客厅空间 , 空间布局紧凑却足够温馨 , 一起随我来看看 。
▼改造后的厨房空间
入户之后 , 可以直接看到厨房空间 。 在厨房空间之中 , 设计师以一字橱柜为焦点 , 打造了一个集厨房和洗衣机为一体的空间 , 同时还置入了冰箱、油烟机 , 功能区域井井有条的同时 , 还拥有丰富的开门柜和抽屉 , 满足日常厨房收纳 。
▼从客厅空间 , 望向过道中的厨房 , 自然清新的原木墙面 , 还有白色烤漆的橱柜门 , 在吊顶射灯的衬托之下 , 小巧却简洁明亮 , 拥有小家的温馨感 。
- 蘑菇|三口之家晚餐在朋友圈惹人馋了,朋友:太奢侈了,好想去蹭饭
- 设计师|这才是豪宅,255㎡别墅设计,现代风+中式元素,入户后惹人羡慕
- 设计师|84㎡全屋打满柜子,没有玄关就造一个,同款户型直接拿去当模版了
- 设计师|一个家庭主妇负责装修新房,不请设计师,完工后的效果还不错!
- 购房置业|一家三口人的111㎡之家,全屋开放,不敢浪费1米空间,却很惊艳!
- 沙溢|走进胡可和沙溢的豪宅,整面墙都是家人合照,一家四口也太温馨了
- |三口之家的新房,120㎡轻奢风格,精致又优雅,享受现代舒适生活
- 设计师|真的很后悔贴了墙布,翘边、起泡、脱落……真正体验才知道
- 设计师|他将21㎡的超小公寓,搞出了5个房间,入户第一刻,像进了迷宫一样
- 设计师|小房子也能展现设计之美!这个精致小家,时尚温馨宽敞大气,优秀!
